Чтение онлайн

на главную - закладки

Жанры

Шрифт:

Упражнение 9. Пальцы обеих рук вытянуть как можно больше, затем сильно ударять пальцами одной руки по пальцам другой. Повторить 5–6 раз. Потом промассировать каждый палец.

Упражнение 10. Отгибайте ладони назад, затем вперед. Повторить 6–8 раз.

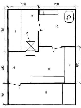
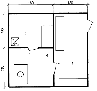
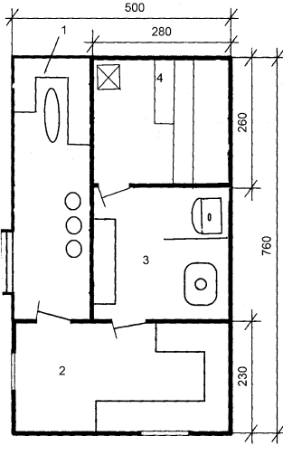
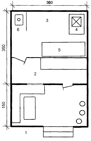
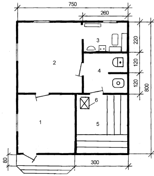
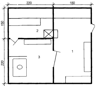
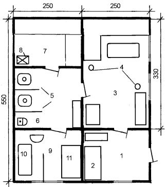
Варианты планировки

Схемы

Список литературы

1. Ауреден Л. Как стать красивой: Секреты красоты от Клеопатры до наших дней: Пер. с пол. – М.: Цитадель, 1996. – 224 с.

2. Бабушкин А. Баня: дом здоровья. – СПб: Питер, 1999. – 160 с.

3. Бани и сауны: Энциклопедия здоровья /Авт. – сост. Орлова М. О. – М.: ООО «Изд-во АСТ»; Донецк: Стакер, 2002. – 317 с.

4. Бани, сауны, бассейны: типы, проектирование и строительство. – М.: Эксмо, 2005. – 208 с.

5. Бирюков А. А. Эта волшебница баня. – М.: Советский спорт, 1991. – 11 с.

6. Водолечение / Сост.: А. А. Кузьменко и др. / – К.: Здоровье, 1992. – 240 с.

7. Все о банях: Сост.: М.О.Орлова, С.М.Тесла. – Донецк: ПКФ «БАО», 1997. – 400 с.

8. Галицкий А. В. Баня парит – здоровье дарит. – М.: Панорама, 1991. – 64 с.

9. Иванченко В.А. Тайны русского закала. Изд. 2-е /Предисл. Зверева И.Д. – М.: Мол. гвардия, 1986. – 173 с.

10. Ивашин Д. С. и др. Лекарственные растения Украины. – К.: Урожай, 1971. – 352 с.

11. Корзунова А.Н. Большая энциклопедия золотого уса. – М.: Эксмо, 2005. – 256 с.

12. Лiкарськi рослини: Енциклопед. довiдник. – К.: Вид-во «Украiнська Радянська Енциклопедiя» iм. М. П. Бажана; Украiнський виробнично-комерцiйний центр «Олiмп», 1992. – 544 с.

13. Михайленко Е.Т., Бублик-Дорняк Г. М. Гинекология: Пособие для мединститутов. К.: Вища школа, 1979. – 432 с.

14. Михайлов А. А. и др. Справочник фельдшера: В 2 томах. Под ред. А.А.Михайлова. – М.: Медицина, 1990.

15. Николайчук Л. В., Жигар М. П. Целебные растения. Лекарственные свойства. Кулинарные рецепты. Применение в косметике. – X.: Прапор, 1991. – 239 с.

16. Нуралиев Ю. Н. Лекарственные растения. Целебные свойства фруктов и овощей. – Душанбе: Маориф, 1988.

17. От болезни к здоровью: Науч. – популяр, изд. / Сост. Карат Л. П. и др. – Днепропетровск: Росток, 1995. – 394 с.

18. Порогов И. О пользе банных процедур. – М.: ЗАО Центрполиграф, 2004. – 187 с.

19. Самойлович В. В. Отделочные работы: Справочник домашнего мастера. – 2-е изд., стереотип. – К.: Будивельник, 1990. – 304 с.

20. Сделай сам. Новое в жизни, науке, технике: Подпис. научн. – популяр, сер., 1/1991, январь-март. – М.: «Знание», 1991. – 144 с.

21. Соколов С. Я., Замотав И. П. Справочник по лекарственным растениям (Фитотерапия). 3-е изд., стереотип. – М.: Медицина, 1990. – 464 с.

22. Трна С. Искусство вести здоровый образ жизни. Пер. с чешек. – М.: Медицина, 1984. – 232 с.

23. Шепеляв А.М. Справочник домашнего мастера. – М.: Стройиздат, 1989. – 367 с.

Список сайтов

www.okdon.ru – история бань, банные процедуры

www.stroimbanyu.com. – сайт о строительстве бань

www.mirsauni.ru – все о саунах

www.biobanya.ru – разнообразные материалы о банях

www.saunapar.ru – все о саунах

www.about-health-care.com – медицинская энциклопедия

www.saunas.kiev.ua – статьи о саунах

www.rusbani.ru – банный сайт

www.vashabanya.com – все о банях

www.bani-kiev.com – статьи о банях и их строительстве

www.banya-tlt.ru – сайт о строительстве и отделке бань

www.bath-pro.ru – статьи о банном оборудовании

www.plotnic.ru – сайт о работе с деревом, строительство деревянных бань и саун

www.fundamentpro.ru – все о фундаментах

www.stroy-bani.ru – все о строительстве бани

www.bani.tom.ru – все о бане и их возведении

www.propechi.ru – сайт о печах

www.kedrsib.ru – изготовление мини-саун из кедра

www.portsauna.ru – все о саунах

www.saunaland.ru – все о саунах

www.mildhouse.ru – все о печах и строительстве бани

www.vizd.ru – статьи о загородных банях

www.baniclub.ru – форум о банях

www.superiorsearch.ru – интересные статьи о банях и банных печах

www.venichki.ru – все о вениках

www.rusbani.narod.ru – сайт о строительстве русской бани

www.remontov.net – сайт о строительстве

www.besthome.ru – строительный сайт

www.krovrus.ru – все о кровлях

Поделиться:
Популярные книги

Газлайтер. Том 18

Володин Григорий Григорьевич
18. История Телепата
Фантастика:
попаданцы
аниме
фэнтези
5.00
рейтинг книги
Газлайтер. Том 18

Барон запрещает правила

Ренгач Евгений
9. Закон сильного
Фантастика:
аниме
фэнтези
попаданцы
5.00
рейтинг книги
Барон запрещает правила

Кодекс Охотника. Книга XIX

Винокуров Юрий
19. Кодекс Охотника
Фантастика:
фэнтези
5.00
рейтинг книги
Кодекс Охотника. Книга XIX

Мастер 11

Чащин Валерий
11. Мастер
Фантастика:
боевая фантастика
попаданцы
технофэнтези
аниме
фэнтези
5.00
рейтинг книги
Мастер 11

Инквизитор Тьмы

Шмаков Алексей Семенович
1. Инквизитор Тьмы
Фантастика:
попаданцы
альтернативная история
аниме
5.00
рейтинг книги
Инквизитор Тьмы

Старый, но крепкий 3

Крынов Макс
3. Культивация без насилия
Фантастика:
рпг
уся
фэнтези
5.00
рейтинг книги
Старый, но крепкий 3

Наемный корпус

Вайс Александр
5. Фронтир
Фантастика:
боевая фантастика
космическая фантастика
космоопера
5.00
рейтинг книги
Наемный корпус

Идеальный мир для Лекаря 4

Сапфир Олег
4. Лекарь
Фантастика:
фэнтези
юмористическая фантастика
аниме
5.00
рейтинг книги
Идеальный мир для Лекаря 4

Последний Паладин. Том 7

Саваровский Роман
7. Путь Паладина
Фантастика:
фэнтези
попаданцы
аниме
5.00
рейтинг книги
Последний Паладин. Том 7

Сын Петра. Том 1. Бесенок

Ланцов Михаил Алексеевич
1. Сын Петра
Фантастика:
попаданцы
альтернативная история
6.80
рейтинг книги
Сын Петра. Том 1. Бесенок

Черный Маг Императора 15

Герда Александр
15. Черный маг императора
Фантастика:
юмористическое фэнтези
попаданцы
аниме
сказочная фантастика
фэнтези
фантастика: прочее
5.00
рейтинг книги
Черный Маг Императора 15

Газлайтер. Том 29

Володин Григорий Григорьевич
29. История Телепата
Фантастика:
боевая фантастика
попаданцы
аниме
5.00
рейтинг книги
Газлайтер. Том 29

Меченный смертью. Том 2

Юрич Валерий
2. Меченный смертью
Фантастика:
аниме
фэнтези
попаданцы
5.00
рейтинг книги
Меченный смертью. Том 2

Воронцов. Перезагрузка. Книга 5

Тарасов Ник
5. Воронцов. Перезагрузка
Фантастика:
попаданцы
альтернативная история
фэнтези
фантастика: прочее
6.00
рейтинг книги
Воронцов. Перезагрузка. Книга 5